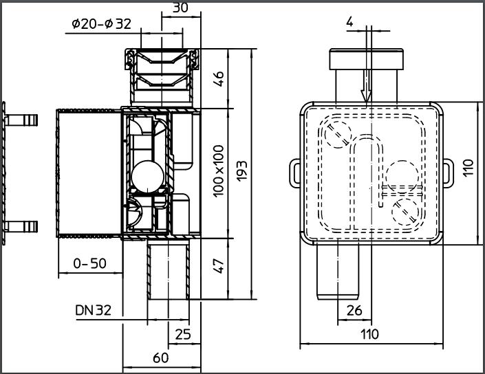
Встроенный сифон для сброса дренажа от кондиционеров, вертикальный, DN32
*Вся информация на сайте uniplast.md: описание товаров и изображения, включая цены товаров; носит исключительно информационный характер и ни при каких условиях не является публичной офертой, определяемой положениями статей 1029 и 1161 Гражданского кодекса Р.М. №. 1107 от 06.06.2002. Для получения подробной информации о наличии и стоимости указанных товаров, а также для уточнения цвета, технических данных и иных характеристик товаров пожалуйста, обращайтесь по телефону: +373 (22) 380 505.





